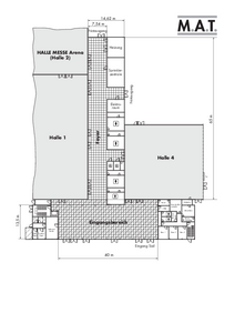
Grundrisse

Logo www.rettet-unsere-industrie.de

Mehr
Informationen